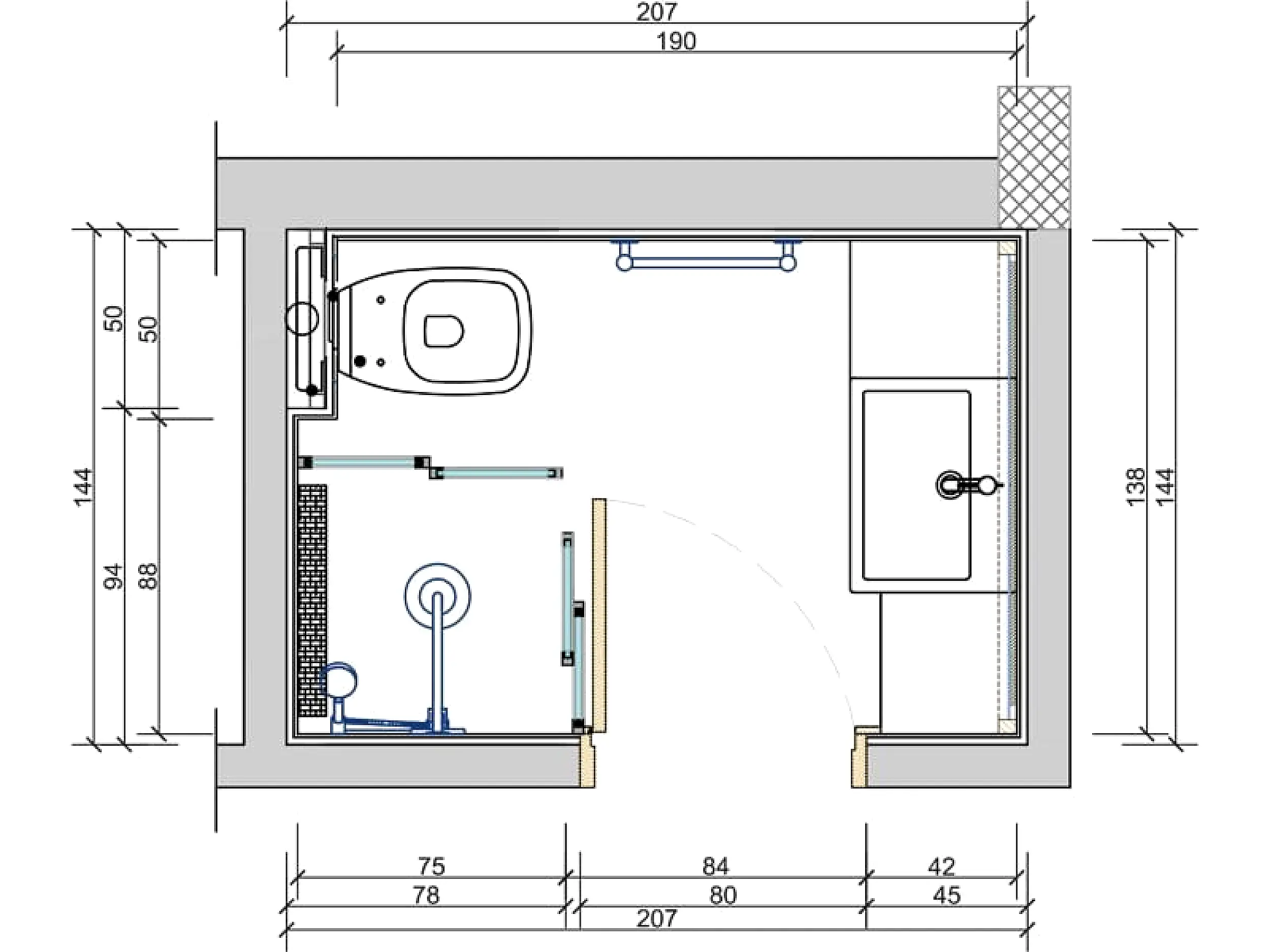
Funkcionalno kupatilo od tri kvadrata

Idejno rešenje ovog kupatila pokazuje da je moguće stvoriti sklad i funkcionalnost u samo 3 kvadrata.

Vero i Starck sanitarije i Raindance tuš ruža neki su od visokokvalitetnih elemenata koji grade ovaj kupatilski koncept.

Na mesto tuš kade projektovali smo Aco tuš kanalicu, a uz Duravit nameštaj uklopili nadgradni umivaonik.

Uvek poželjan na zidu je sušač u beloj a po želji može biti i u inox varijanti.


Rastko Jovanović Dip. Ing. Arhitekture
INSTALACIJE: HIDROTEK
MONTAŽA KABINE: DMG PRO

Vaša korpa je prazna

Pregledajte naše kategorije i
sigurni smo da ćete naći šta tražite!