Kupatilo i sauna

Kako smestiti i saunu u kupatilo

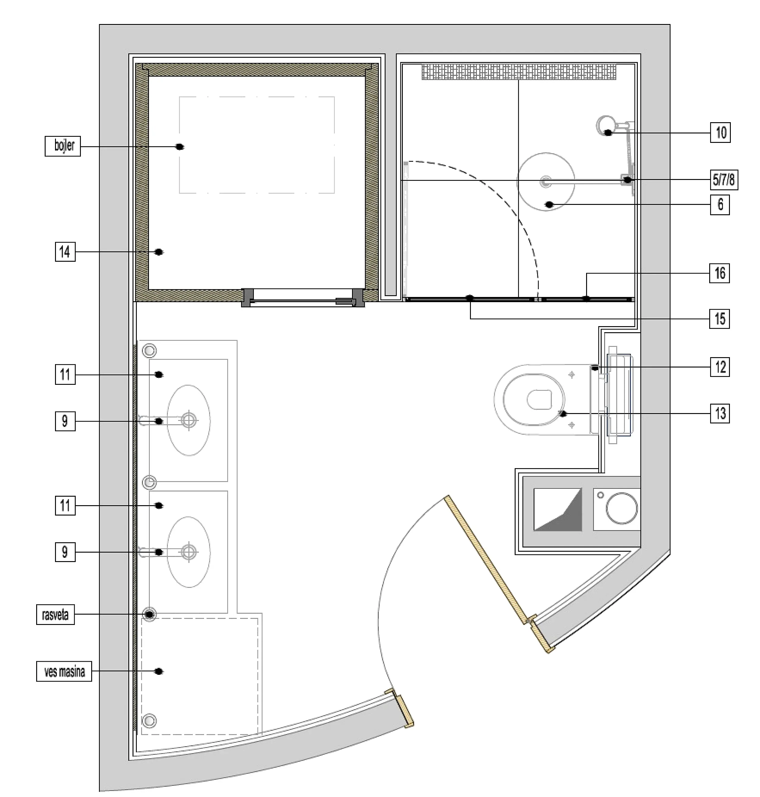
Kupatilo i sauna. Ideja je bila da se kupatilo dimenzije 3,5 x 2,5 m iskoristi maksimalno uz dodavanje male saune.

Ugrađeni su proizvodi brenda Hansgrohe, Duravit, Effegibi, ...






Pavle Cekić Dip. Ing. Arhitekture

INSTALACIJE: HIDROTEK

MONTAŽA KABINE: DMG PRO

POGLEDAJTE GLAVNI PROJEKAT

















.

Kupatilo — kompletan index vodiča

Centralni hub za sve teme o kupatilu: renoviranje, dizajn, sanitarije, lavaboi, WC, ogledala, radijatori, nameštaj. Akvabutik salon — Bulevar oslobođenja 41, Beograd.

Glavne stranice

Renoviranje

Dizajn i trendovi

Malo kupatilo

Lavabo

WC, bide, vodokotlić

Ogledala

Radijatori i sušači

Nameštaj i galanterija

Brendovi (sanitarije)

Sauna i spa

Specifičnosti

Trebaš savet? Pozovi +381 11 344 9550 ili dođi u salon.

Vaša korpa je prazna

Pregledajte naše kategorije i
sigurni smo da ćete naći šta tražite!