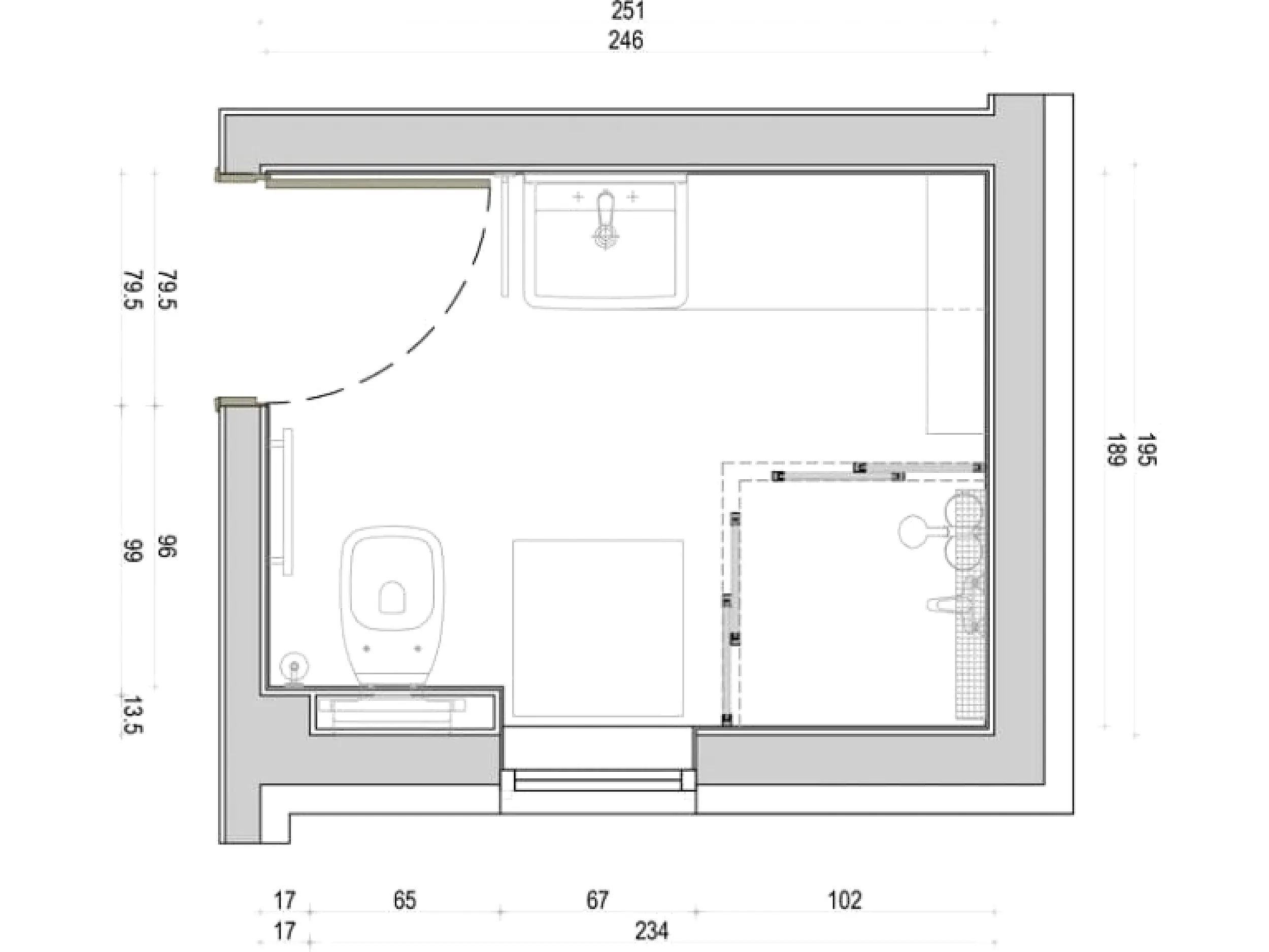
Malo kupatilo sa tuš kabinom u uglu

Idealno rešenje za mala kupatila su tuš kabine sa staklenim vratima postavljene u uglu. Ne samo da su efikasne u planiranju prostora već deluju prozračno i čine prostor većim.

Pažljivo odabrane PG Concept kupatilske pločice u Grade brown nijansi takodje doprinose prostranosti.


Rastko Jovanović Dip. Ing. Arhitekture

INSTALACIJE: HIDROTEK

MONTAŽA KABINE: DMG PRO

POGLEDAJTE GLAVNI PROJEKAT


Vaša korpa je prazna

Pregledajte naše kategorije i
sigurni smo da ćete naći šta tražite!